Konverze bývalých městských lázní v Chomutově na knihovnu 21. století
Autor: ing.arch. Pavel Šťastný, ing.arch. Jan Koníček
Stupeň projektu: Architektonická studie (soutěž 4-5. místo - odměna)
Rok projektu: 2022
Lokalita : Mánesova 4757 Chomutov
Klient: Město Chomutov
Celková plocha: 9600 m2
Cena realizace: 640 mil. Kč bez DPH
CZ:
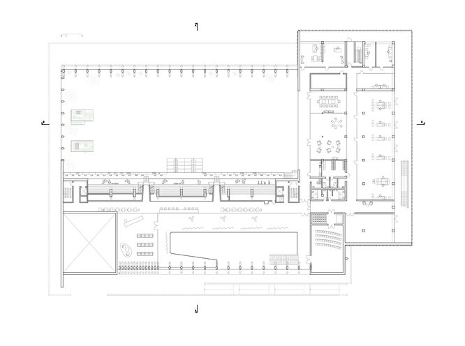
Předmětem soutěže je zpracování architektonicko – konstrukčního návrhu konverze objektu bývalých městských lázní v Chomutově včetně dispozičně – provozního návrhu a řešení provazby navazující veřejný prostor. „Budoucí knihovna by měla být lidská, vstřícná, výtající, hřejivá, flexibilní, ale zároveň si musí zachovat původní identitu bývalých lázní“. Koncept obnovy, konverze budovy lázní na knihovnu s dalšími doplňkovými funkcemi je založen na těchto základních bodech:
- V maximální míře zachování tvaru a konstrukce budovy s minimálním rozsahem intervencí a zásahem do nosných konstrukcí
- Propojeni parku a budovy knihovny, vytvoření „kulturního“ parku mezi knihovnou a divadlem
- Zachování velkorysé bazénové haly, vnoření boxu dětského oddělení do prostoru původního bazénu.
- Jednoduchost a logičnost provozního dispozičního uspořádání
- Logika pohybu návštěvníků, zaměstnanců
- Snadná oddělitelnost jednotlivých provozů
- Aktivace parteru za pomoci modelace terénu
- Využití původního vstupního foyer jako nového vstupu do knihovny
- Variabilita využití hlavní bazénové haly



















