Univerzirní knihovna a rektorát UJEP
Autor: SIAL architekti a inženýři spol. s r.o. | Jiří Buček, Jiří Chmelík, Jan Kadlas, Pavel Šťastný
Stupeň projektu: studie, prověděcí dokumentace interiéru
Lokalita: Ústí nad Labem
Realizace: 2011-12
Náklady: 321 000 000
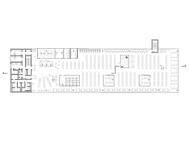
CZ: Koncept ležatého hranolu volných výběrů, který je uložen nad kompaktním blokem administrativy a servisních funkcí a třípodlažním objektem fakulty sociálně ekonomické. Knihovna má 6 nadzemních podlaží a 2 podlaží podzemní. Hmota rektorátu je rozdělena na 3 hmoty v podobě hlavního sálu, přednáškových sálů a kanceláří pro vedení univerzity. Tyto hmoty jsou spojeny platformou nad kterou vzniká studentské náměstí. Koncept interiérů obou objektů přiřazuje každému prostoru jinou barevnost. Barevnost návštěvníka vtahuje do daného prostoru.
ENG: The concept of a low-lying prism of open shelves is placed above a compact block of administrative and service functions and a three-story building of the Faculty of Social-Economic Sciences. The library has 6 above-ground floors and 2 underground floors. The architecture of the Multifunctional Center (MFC) is based on the concept of a 3 splited building volumes connected by a central platform. Above platform is placed students square. Interior concept both buildings assigns each different space different coloration.






















